Sunday, April 14, 2019
UPSTAIRS WORKSPACE TO BE SECURED BEFORE TALKS
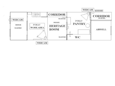
We want to install webcams in the public workspace and pantry/WC areas. Movement will be monitored and recorded. Two areas are restricted to the public.
Newer Posts
Older Posts
Home
Subscribe to:
Comments (Atom)
Search This Blog